Оглавление

Котельные на древесных отходах

Котельная на опилках, щепе и древесных отходах востребована для предприятий, где необходимо обеспечить качественное, постоянное и эффективное отопление промышленных цехов и площадок с минимальными затратами. Такие виды твердого топлива, как опилки или щепа делают выработку тепла особенно рентабельными для пилорам, лесопилок, мебельных предприятий и любых производств, где осуществляется деревообработка.

Котельный завод РЭП производит котельные для:

  • отопления предприятий;
  • сушильных камер для сушки древесины;
  • получения пара на технологические нужды.

Деревопереработка всегда сопровождается большим количеством опилок, стружки и щепы, которые является естественным и далее невостребованным в производстве отходом технологических процессов. Данные критерии делают отопление на опилках малозатратным для данных отраслей - появляется возможность дешево обеспечивать котельные топливом, неся затраты только на приобретение оборудования, его наладку и периодическое обслуживание, а также обеспечение площадки накопления и хранения топлива.

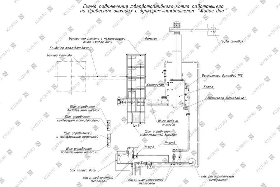
Устройство котельной на опилках, щепе и отходах деревообработки

Оборудование, которым компонуется котельная на щепе и опилках, можно разделить на отдельные подгруппы (узлы):

  • котлоагрегат с запорной арматурой и предохранительным клапанами;
  • вентиляторы первичного и вторичного воздуха;
  • топливный бункер склад (в штатной конструкции агрегата или отдельное механизированное устройство);
  • насос;
  • дымосос;
  • дымовая труба;
  • газоходы;
  • система автоматики;
  • система водоподготовки (в случае жесткой воды).

Для того чтобы понять, как работает котельная на опилках, разберем каждый узел в отдельности.

Котлоагрегат

Котельные на древесных отходах нашего производства комплектуются водотрубными водогрейными и паровыми агрегатами на опилках с вихревой камерой горения (топкой) и автоматической подачей шнековым транспортером, либо агрегатами с подовой топкой.

Котлоагрегат с вихревой камерой горения собирается из следующих узлов:

  • бункер;
  • питатель шнековый;
  • вихревая топка;
  • котельный блок с конвективными пакетами.

Вихревая топка является опорным каркасом под установку котлового агрегата.

Для улучшения устойчивости процесса горения и его усиления используется зажигательный пояс, сформированный из огнеупорного кирпича и бетона, которые облицовывают топку. Облицовка уменьшает теплоотдачу котлоагрегата в окружающую среду, что способствует более интенсивной сушке опилок и щепы.

Для создания вихря используется раздельная подача воздуха: первичный воздух подается с помощью высокопроизводительного вентилятора в зону топливной подачи; вентилятор средней производительности подает вторичный воздух для дожига топлива и стимуляции вторичного вихревого потока.

Теплоагрегат с подовой топкой

Котлы на древесных отходах с подовым горением применяются для сжигания древесных отходов естественной влажности, сырых и влажных дров, бревен и поленьев, горбыля, щепы, коры, стружки, опилок, досок и поддонов, отходов мебельного производства, ДСП.

Подовая топка изготавливается из огнеупорного кирпича, способствующего созданию пояса зажигания для сжигания сырого топлива. Особая система подачи воздуха в топку способствует интенсивной сушки влажных и сырых древесных отходов крупных и мелких фракций, а также поддерживает процесс горения топлива. Большой объем топочной камеры позволяет единовременно загружать большой объем топлива. Поворотная камера на выходе из топки работает как зона догорания легких и мелких топливных частиц, которые захватываются потоком уходящих газов.

Насос

Котельные установки на древесных отходах оснащаются подпиточным и сетевым насосом, который осуществляет перенос тепла от котельной к точкам потребления.

Параметры насосов:

  • Объем перекачиваемого теплового агента измеряется в м³/ч.
  • Максимальная температура жидкого теплового агента. Измерение производится в ⁰C. Максимальный диапазон температуры означает предел, при котором насос может функционировать исправно.
  • Напор теплоносителя, который создается насосом.

Для увеличения надежности котельная для пилорамы должна быть оснащена дублирующим насосом с идентичной производительностью. Подключение к системе производится параллельно.

Насосы подбираются для объекта в зависимости от теплотрассы.

Топливный бункер склад «живое дно»

Топливный склад рассчитывается и конструируется в соответствии со следующими критериями:

  • габаритный размер котельной;
  • возможности доставки топлива к котельной;
  • режим работы котельной.

Важно! Наиболее эффективный вариант обустройства – это котельная для лесопилки со складом, который обеспечен механизмом автоматической подачи. Такие склады рассчитаны на 8-48 часов автономной работы, в зависимости от мощности теплогенаратора.

Механизированный склад архитектурно соединяется с капитальным складом или накопительной площадкой. Подача топлива из капитального в механизированный склад может осуществлять различными способами – конвейером, манипуляторами, электрическими тельферами или погрузочным автотранспортом, вариант выбирается в зависимости от компоновки вашей котельной. Общий объем загрузки механизированном бункере, его габаритные размеры, мощность гидросистемы управления механизмами склада зависят от вашего технического задания и всегда подбираются индивидуально под конкретный объект.

Схема топливного склада «Живое дно»

Механизированный (автоматический) склад с гидроцилиндрами-толкателями:

1. Гидростанция.

2. Упорный буфер гидроцилиндров.

3. Гидроцилиндры-толкатели.

4. Система подвижных решеток.

5. Вал-разрыхлитель.

6. Канал приема.

7. Шнек выгрузки.

8. Электропривод шнекового транспортера.

Современные модели механизированных складов «Живое дно», которыми оснащаются котельные на древесных отходах

взамен шнековым транспортерам укомплектованы скребковыми транспортирующими устройствами, которые отличаются большей производительностью, прочностью и слабой восприимчивостью к качеству и фракции транспортируемого топлива.

В зависимости от проекции расположения гидропривода гидроцилиндры-толкатели двигаются по полу склада возвратно-поступательно.  Когда толкатель находится в конечном положении, происходит возрастание давления и толкатель автоматически начинает движение назад. Так работает вся система толкателей, чередуя движение групп толкателей взад-вперед попеременно.

Вал-рыхлитель

Вал-рыхлитель механизированного склада Вал-рыхлитель

В конце механизированного склада располагается вал-рыхлитель, к которому толкатели подают топливо. Наличие рыхлителя позволяет обслуживать смерзшееся и слипшееся топливо.

Кроме того, вал осуществляет управление загрузкой конвейера, который выгружает топливо из склада. Для этого используется устройство, которое запускает или отключает штанговые толкатели.

Промежуточный бункер накопитель малого объема

В случае, если вы не хотите устанавливать с котлоагрегатом механизированный бункер большого объема, можно применить другое техническое решение. Топливо подается конвейером или погрузчиком с основного склада топлива, находящегося за пределами котельной в промежуточный бункер накопитель объемом 0,8 – 1 м³, устанавливаемый также рядом с агрегатом.

В данном бункере, также предусмотрен штатный ворошитель.

Промежуточный бункер необходим для:

  • обеспечения рациональной подачи топлива на решетку;
  • препятствия обратному возгоранию, то есть бункер является одновременно и «воздушным замком»;
  • предотвращения присосов воздуха, что позволяет более тщательно осуществлять горение в топке котельной установки.

В нижней части бункер оснащается заслонкой, которая перекрывает подачу топлива после ее завершения.

Дымосос и дымовая труба

Установка дымососа осуществляется для удаления продуктов сгорания, образующихся при работе теплогенератора.

Дымовые трубы бывают следующих типов:

  • колонные;
  • фасадные и околофасадные;
  • бескаркасные;
  • мачтовые на оттяжках.

Самым простым и дешевым вариантом является мачтовая дымовая труба на оттяжках.

Газоход

Газоход Газоход

Газоход – это технологический магистральный канал, соединяющий дымовую трубу и выходное отверстие агрегата. Их изготавливают из листового металла, обеспечивающего прочность, долговечность и устойчивость к высокой температуре дыма до 350 ⁰С.  Главные требования к конструкции – прочность, жесткость и устойчивость к коррозии, аэродинамическому воздействию при транспортировке дыма, отсутствие заужений и углов, для исключения высокого сопротивления в системе.

Золоудаление и золоуловители

Золоудаления для агрегатов нашего производства не требуется, так как при вихревом способе сжигания отходов деревопереработки доля золы не превышает 2%.

Циклон ЦН-15 Циклон ЦН 15

Фактически необходимость очистки топки от золы не чаще 1 раза в месяц.

Золоуловители так же не требуется ставить с котлоагрегатами нашего производства в случае, если у вас достаточно высокая дымовая труба и проведена наладка режимов работы агрегата. Все мелкие частицы опилок и щепы сгорают в топке. В случае если вы все-таки хотите установить золоуловитель – это могут быть модели ЦН 15 или ЗУ, в зависимости от мощности установки.

Система автоматики котельной

Автоматические системы управления и контроля котельных на опилках, щепе и отходах деревообработки позволяют:

  • обеспечивать автоматическую настройку воздухоподачи, топливоподачи после пуска теплоагрегата в работу;
  • обеспечивать контроль и корректировку эффективности горения топлива, контролировать расход в соответствии с изменением параметров топлива;
  • производить остановку агрегата при возникновении аварии, а также активизировать систему пожаротушения, которой обеспечена котельная;
  • поддерживать заданные параметры работы, теплопроизводительность и температуру теплоносителя.

Все перечисленные мероприятия выполняются системой автоматически, без участия оператора котельной. Кроме того, система автоматики позволяет управление в ручном режиме или через частотные преобразователи тока для следующих агрегатов:

  • Вентиляторы для первичного и вторичного воздуха.
  • Дымосос.
  • Шнековый (скребковый) транспортер топлива.
  • Ворошитель.

Система водоподготовки котельной

Водоподготовка заключается в очистке воды, которая подается в котельную, при этом выделяются следующие виды и этапы:

В обязательном порядке выполняется:

  • механическая очистка от примесей;
  • смягчение и удаление солей методом обратного осмоса и применением фильтров с ионообменной смолой.

При высоком содержании металла в воде, дополнительно может применяться:

  • аэрация;
  • обезжелезивание.

Типовые схемы различных вариантов водоподготовки представлены на схемах.

Подготовка воды для паровых установок методом двухступенчатого Na-катионирования c предварительным обезжелезиванием.

Установка водоподготовки состоит из следующих основных узлов:

  • Фильтр грубой очистки. Главная задача отделить водяной поток от крупных примесей.

  • Обезжелезивающая колонна. В корпус колонны засыпается вещества осуществляющие катализацию (расщепление) железа, растворенного в воде.
  • Установка аэрации. Состоит из компрессора и корпуса колонны. Принцип работы основан на подаче кислорода, который производит мощное окисление загрязнений и растворяет их.
  • Фильтр обратного осмоса. Необходим для удаления из воды соли, а значит придания большей «мягкости». Альтернативой является применение фильтров с ионообменной смолой.

Эффективное проведение водоподготовки защитит котлоагрегаты от отложения минеральных образований и вкраплений, которые могут стать причиной поломки.

Влияние топлива на процесс горения

Оборудование котельной избирается в зависимости от того, какого качества топливо будет использоваться, в частности – сухая или влажная щепа(опилки). Если котельная для сушки подразумевает применение влажной щепы, то рекомендуется использовать агрегаты с предтопком, смонтированным в конструкцию. Поверхность предтопка покрыта обмуровкой с формированием небольших участков (поверхностей) нагрева, которые обеспечивают высокую температуру для осуществления сжигания топлива.

Влажность топлива определяется процентным содержанием влаги, топливо с влажностью меньше 30% считается сухим. При этом верхняя допустимая граница влажности варьируется от 50 до 55%. При большем проценте влажности практически невозможно достичь эффективного режима горения и образования тепловой энергии.

Очевидно, что влажность – это переменный параметр, кроме того, разные уровни влажности при одном и том же объеме топлива позволяют получать различное количество тепла. При чем кратность количества теплоты, которое продуцирует промышленная котельная на щепе может разниться в 2 и более раз.

Дополнительными параметрами топлива (опилок, щепы, отходов деревообработки), влияющими на процесс высвобождения тепла и эксплуатацию установок являются:

  • Зольность. Принято считать зольность высокой, если в топливе присутствует большое количество примесей в виде древесной коры или песка. Кроме того, если опилки считаются отходом от производства ДСП, МДФ и пр., то в общем объеме отходов будет присутствовать большое количество смол и клея.
  • Фракция. По факту опилки — это измельченная древесина после механического воздействиями на заготовку посредством пил, станков и т.п. Опилки состоят на 2/3 из углеводов и на 1/3 из лигнина. Данное соотношение формирует параметры плотности опилок. Что касается фракции, то наличие крупных фрагментов в общем объеме опилок может воспрепятствовать механизмам подачи топлива, узлам автоматического склада и т.п., но при попадании их в топку все крупные древесные фрагменты сгорят.

Продукция нашего завода

На нашем заводе вы можете купить все необходимое оборудование высокотехнологичного теплового комплекса - промышленной котельной на опилках, опилках и отходах деревообработки. Мы имеем большой опыт эффективной работы и положительную многолетнюю репутацию в сфере снабжения теплом для твердотопливных механизированных котельных мощностью от 200 кВт до 10 МВт.

Наш завод гарантирует следующие преимущества:

  • Сборка всех конструкций производится только в заводских условиях с применением соответствующих технологий и контролем качества всех процессов.
  • Вся продукция подвергается предварительным испытаниям, мы проводим обкатку транспортеров в процессе изготовления под ваш вид топлива.
  • Качество продукции подтверждено соответствием международным стандартам и системе сертификации.
  • В процессе изготовления используются материалы и комплектующий российского производства, все узлы и детали легко и просто заменяются в случае износа.

Завод выполняет всю работу от создания проекта до подбора и установки всех мощностей, сопроводим монтаж и наладку котельной по месту, а также предоставим спектр всех необходимых рекомендаций для самостоятельного монтажа.

Купить котельную работающую на отходах деревообработки в Волгограде, вы можете оформив заявку в отделе сбыта по телефону (38-52) 29-97-41 (42), либо оформить заявку онлайн.

Предлагаем вам ознакомиться с Обзором котла большой мощности, работающего на опилках и щепе, которым комплектуется любая промышленная котельная на древесине.

Автор: Антон Гор

Дата публикации: 09.12.2025

Похожие статьи
О заводе
  • Котельный завод «РЭП» выпускает водогрейные котлы марки HeatExpert и паровые котлы STEAMEXPERT, топки, транспортеры, скиповые подъемники, циклоны и вспомогательное оборудование. Каждое изделие собирается с тщательным контролем качества на всех этапах.
  • Наше оборудование успешно работает практически во всех регионах России от Крыма до Камчатки, на территории соседних государств Казахстана, Белоруссии, Монголии, Литвы, Узбекистана.
  • Разработки проектного отдела завода имеют патенты. Оборудование производится по типовым проектам и по техническим заданиям.
  • Вся продукция завода сертифицирована.
  • Аттестованная технология сварки позволяет выпускать поднадзорную продукцию.
  • Выполняем разделы проектов теплоснабжения для прохождения экспертизы и составления проектно-сметной документации. Состоим в реестре членов СРО для выполнения проектных и строительных работы.
  • Выполняем инженерно-консультационные услуги по эксплуатации и наладке котельных.
3D-турпо заводу

Виртуальный тур нашего завода

3D-турпо котельной

Виртуальный тур нашего завода

Смотреть видеообзор на

Котельный завод изготавливает котельные на древесных отходах для производственных предприятий, отапливаемая площадь от 2000 м². Температура воды 95 - 115 градусов.

Наш youtube канал
Документы завода
  • Сертификаты завода
  • Членство в СРО
  • Аттестованная технология сварки
  • Патенты на котельное оборудование
  • Товарные знаки
Смотреть все документы
Сертификат на водогрейные котлы на твердом и жидком топливе
Сертификат на водогрейные котлы на газе и жидком топливе
Сертификат на котлы отопительные паровые КП
Сертификат на топки
Сертификат на щиты управления
Сертификат на скиповые подъемники
Сертификат на золоуловители (циклоны)
Сертификат на конвейеры скребковые
Сертификат на дробилки
Сертификат на клапаны предохранительные
Сертификат на бункер-накопитель механизированный
Сертификат на автоматику газовых горелок
Сертификат о происхождении товара форма СТ-1
Членство в СРО
Членство в СРО
Аттестованная технология сварки
Свидетельство аттестованной технологии сварки
Патент на отопительный котел
Патент на водогрейный котел
Патент на топку водогрейного котла
Патент на водогрейный газовый котел
Патент на водогрейный котел
Патент на топочное устройство твердотопливного котла
Патент на водогрейный котел
HEATEXPERT товарный знак
KVZR товарный знак
STEAMEXPERT товарный знак
background